Wälzwagen mit Führungsrollen
Anwendungsbereiche
- für längere Verschiebewege und/oder Dauerlasten bei zusätzlicher seitlicher Last
- auf geeigneten Fahrbahnen wie (Kran-)Schienen und/oder Trägern verwendbar
- Anzahl und Anordnung der Führungsrollen ist individuell und wird kundenseitig festgelegt
Hauptmerkmale
- robuste, wartungsarme Schweiß-Konstruktion zur Einhaltung der Fahrtrichtung
- Maßanfertigung gemäß Kundenwunsch je nach Fahrbahnprofil
- Mindestanforderung an das Wälzwagenmodell: gehärteter Mittelsteg; Rollenmaterial 50 CrV4 ist empfehlenswert
Gebrauchshinweise
- Für die Fertigung ist die Angabe des Profils oder des Maßes „X“ zwingend erforderlich. Das Maß „X“ ist der Abstand zwischen Wälzwagenmitte und Innenkante der Führungsrolle unter Berücksichtigung der Fahrbahntoleranzen
Beispiel: Bei Verwendung eines HEB 200 Trägers beträgt die Fahrbahnbreite 200mm.
Das Maß „X“ errechnet sich aus der halben Fahrbahnbreite zuzüglich einer Toleranz von typischerweise 5mm. In diesem Falle beträgt also „X“ = 105 mm (200mm : 2 + 5mm ).
Auch geringere Toleranzen als 5mm sind selbstverständlich möglich.
- Besonders empfehlenswerte Anordnungen der Führungsrollen:
- bei geringer Kenntnis der Profilparallelität (Träger / Schiene) nur einem Profil führen und die Wälzwagen auf diesem Profil in der Anordnung FR-E wählen
- bei präzise verlegten Profilen auf beiden Profilen die Wälzwagen mit der Anordnung FR-C ausstatten
- wenn seitliches Anbringen von Führungsrollen unmöglich ist, empfehlen wir Leitrollen, die vorn und / oder hinten strinseitig angebracht sind gemäß dem vorgegebenen Profil (siehe Wälzwagen mit Leitrollen)
- Modifikationen des Bohrbildes in der Deckplatte auf Wunsch
- der Schraubenkopf der Führungsrollen bei den Modellen I-III kann auf Wunsch nach innen gelegt werden
- beim Modell IIIv kann auch die große Führungsrolle gewählt werden
- Maximale Verschiebegeschwindigkeit ≤ 5 m/min.
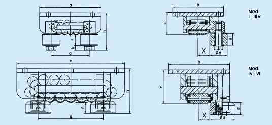
MODELL A-H-FR, AS-H-FR-, AM-H-FR-
(H = Mittelsteg gehärtet und geschliffen),
| Mod. | a | b | c | Ø d | e | f | g | h | k | X min | X max | zulässige Radialkraft p.Führungsrolle (kN) |
|---|---|---|---|---|---|---|---|---|---|---|---|---|
| I | 210 | 175 | 76 | 60 | 40 | 36 | 130 | 128 | 16 | 35 | 80 | 10 |
| II | 220 | 190 | 87 | 60 | 40 | 32 | 140 | 135 | 16 | 42 | 90 | 10 |
| III | 270 | 210 | 104 | 60 | 40 | 32 | 180 | 152 | 16 | 50 | 110 | 10 |
| IIIV | 320 | 220 | 115 | 60 | 40 | 32 | 230 | 163 | 16 | 55 | 115 | 10 |
| IV | 380 | 270 | 145 | 125 | 60 | 50 | 160 | 195 | -- | 45 | 150 | 100 |
| V | 530 | 300 | 165 | 125 | 60 | 50 | 280 | 215 | -- | 50 | 160 | 100 |
| VV | 500 | 350 | 190 | 170 | 60 | 50 | 340 | 240 | -- | 50 | 170 | 150 |
| VI | 900 | 380 | 200 | 170 | 60 | 50 | 550 | 250 | -- | 50 | 170 | 150 |
MODELL A–H–FR–, AS–H–FR–, AM–H–FR–
(H = Mittelsteg gehärtet und geschliffen),
| Größe | I | II | III | IIIV | IV | V | VV | VI | Größe |
|---|---|---|---|---|---|---|---|---|---|
| Ø d | 14 | 14 | 18 | 18 | 22 | 22 | 26 | 33 | Ø d |
| k | 140 | 155 | 175 | 180 | 220 | 240 | 280 | 300 | k |
| l | 150 | 150 | 190 | 240 | 280 | 410 | 480 | 720 | l |
Beratung
Interessieren Sie sich für unsere Produkte oder benötigen Beratung?
Wir sind gerne für Sie da.