Modell B
Anwendungsbereiche
- für kurze Transportwege
- transportieren mittelschwerer Lasten z.B. Vorschubgerüste und Betonverschalungen auf Baustellen
- kann mit der Last bei geringster Bauhöhe verschraubt werden
Hauptmerkmale Modell N
stabile, solide Grundkonstruktion
niedrige Bauhöhe
Zubehör für Richtungsänderungen
Hauptmerkmale
- stabile, solide Grundkonstruktion
- niedrigste Bauhöhe mit toleriertem Höhenmaß, Baureihen .. B + … C höhengleich
- stabile Lastverteilung durch feste Verbindungsmöglichkeit mit der Last
- Modell B-H (mit gehärtetem Mittelsteg) wird verwendet, wenn der Wälzwagen unter hoher Last für längere Zeit nicht bewegt wird. Hierdurch wird ein Eindrücken der gehärteten Stahlrollen in den standardmäßig ungehärteten Mittelsteg verhindert und ein gleichmäßig geringer Rollwiderstand sichergestellt
- Modell B-H-50CrV4 (Rollenmaterial 50CrV4) wird empfohlen, wenn die Gefahr einer kurzfristigen Überlastung jenseits der angegebenen Tragfähigkeit der Wälzwagen nicht ausgeschlossen werden kann bzw. wahrscheinlich ist
Gebrauchshinweise
- bei längeren Stillstandzeiten (diskontinuierlichen Transporten) Modelle mit gehärtetem Mittelsteg wählen
- Im Falle möglicher Überbelastungen höherwertiges Rollenmaterial 50CrV4 verwenden
- Maximale Verschiebegeschwindigkeit: ≤ 5 m/min.
- Der Rollwiderstand beträgt bei den Modellen I-IIIv je nach Fahrbahn 7 – 5 %, bei größeren Modellen 5 – 3 % der Gesamtlast
- auch mit Führungsrollen lieferbar
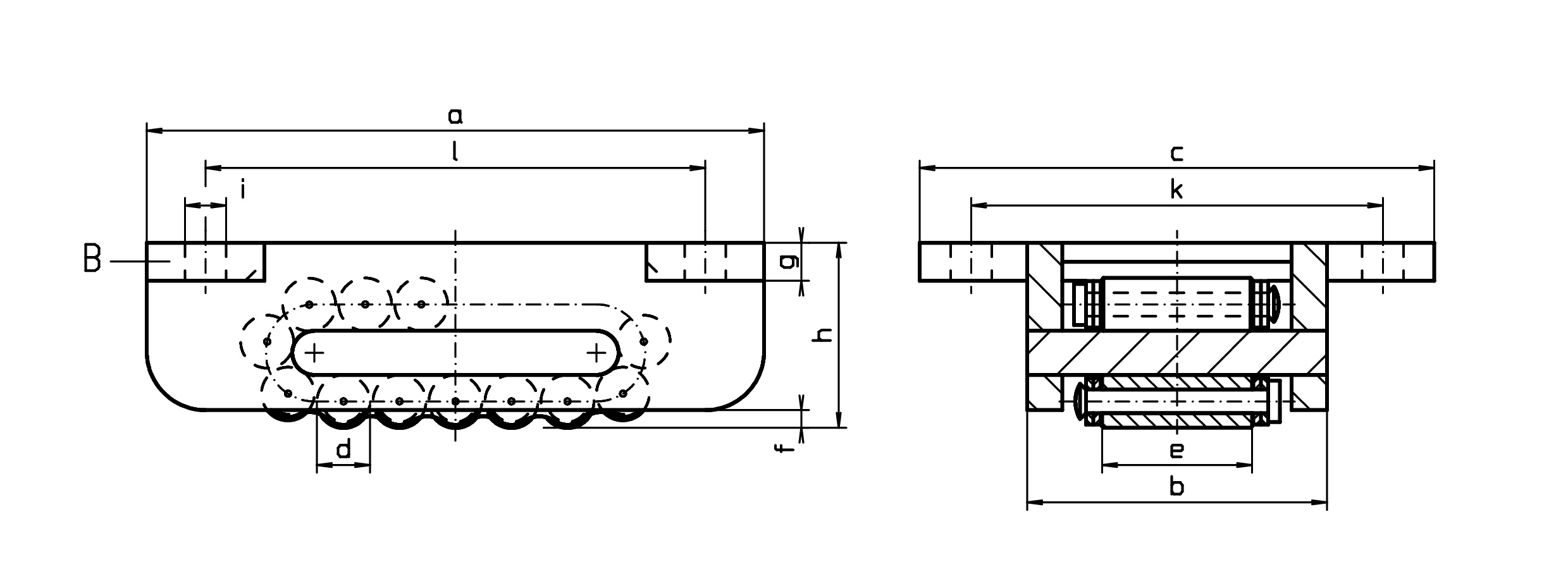
Modell B, B-H
(H = Mittelsteg gehärtet und geschliffen)
Modell B-H-50CrV4
(Rollenmaterial 50CrV4)
| Größe | a | b | c | Ød | e | f | g | h | Øi | k | l | trag. Rollen | Rollen anzahl | Tragkraft max kN | Gewicht kg |
|---|---|---|---|---|---|---|---|---|---|---|---|---|---|---|---|
| I | 210 | 100 | 175 | 18 | 51 | 6 | 13 | 63 | 14 | 140 | 170 | 5 | 15 | 100 | 6,2 |
| II | 220 | 113 | 190 | 24 | 60 | 10 | 14 | 73 | 14 | 155 | 180 | 4 | 13 | 150 | 8,4 |
| III | 270 | 130 | 210 | 30 | 68 | 10 | 14 | 90 | 18 | 175 | 220 | 4 | 13 | 300 | 14,1 |
| IV | 380 | 168 | 270 | 42 | 76 | 19 | 19 | 126 | 22 | 220 | 320 | 4 | 13 | 600 | 36,5 |
| V | 530 | 182 | 300 | 50 | 86 | 19 | 19 | 146 | 22 | 240 | 470 | 6 | 17 | 800 | 66,4 |
Beratung
Interessieren Sie sich für unsere Produkte oder benötigen Beratung?
Wir sind gerne für Sie da.